Fasad lokal 1 och 2
Järfälla
Övriga lokaler - Uthyres
Adress:
Barkarbyvägen 89
Hyra:
3 000 kr/kvm/år
Lokal, valbar area:
45–318 kvm

Horisont Barkarby

I Barkarbystaden växer en helt ny stadsdel fram, där livskvalitet står i fokus. Här blir
livspusslet enkelt med närhet till nya tunnelbanan, skolor, service och med vacker
natur runt knuten. JMs kvarter Horisont Barkarby byggs i en lugn del av området
och omfattar totalt 229 ägarlägenheter som omsluter en grön innergård.

I kvarteret finns fyra lokaler i gatuplan, anpassade för olika typer av
verksamheter. De två mindre lokalerna om 45 respektive 61 kvm lämpar sig för
butik- eller kontor, medan hörnlokalen om 126 kvm är förberedd för enklare
restaurang, deli eller café. Den största lokalen är på 318 kvm och i den har du
möjlighet att utforma planlösningen utifrån din verksamhet.

Planlösning

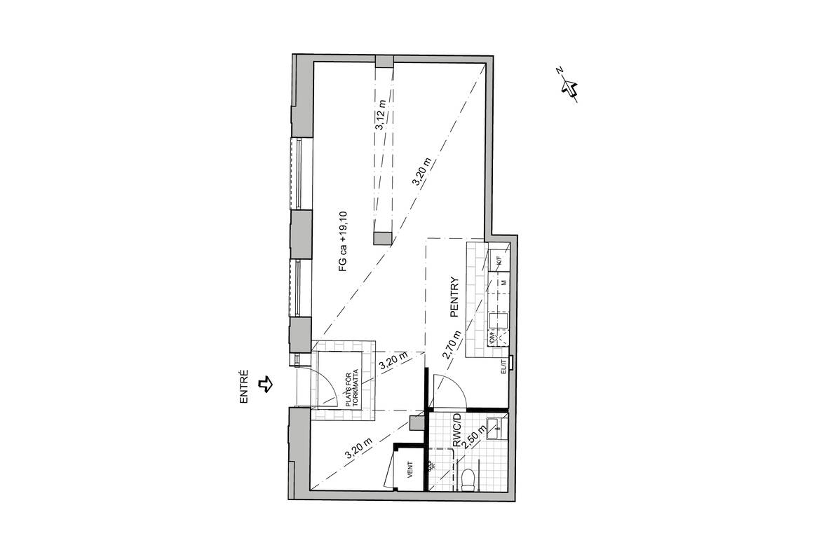
LOKAL 1 61kvm, Ålsta Allé 10 

En lokal på 61 kvm med pentry och RWC. Entré och stora fönster mot Ålsta Allé. Miljörum, gemensamt för samtliga lokaler i kvarteret, är placerat i entréplan i trapphus 2 utmed Ålsta Allé. Inkast till sopsugsanläggning finns i kvarterets garageplan som ligger i anslutning till lokalen. Lokalen utgör en egen fastighet och lämpar sig väl för butik- eller kontorsverksamhet. Lokalen hyrs ut med målade ytskikt och parkettgolv.

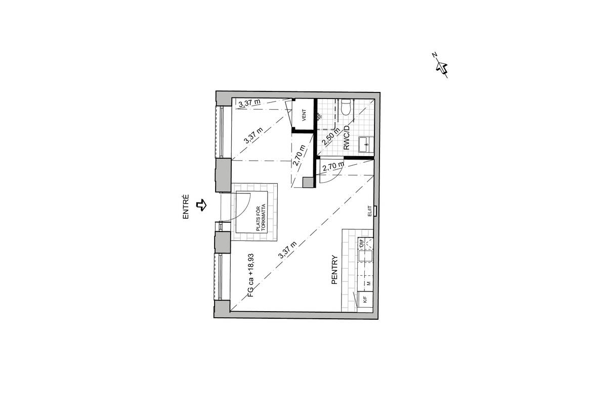
LOKAL 2 45kvm, Ålsta Allé 6

En lokal på 45 kvm med pentry och RWC. Entré och stora fönster mot Ålsta Allé. Lokalen utgör en egen fastighet och lämpar sig väl för butik- eller kontorsverksamhet. Den hyrs ut med målade ytskikt och parkettgolv.
Miljörum, gemensamt för alla lokaler i kvarteret, är placerat i entréplan i trapphus 2 utmed Ålsta Allé. Inkast till sopsugsanläggning finns i kvarterets garageplan som ligger i anslutning till lokalen.

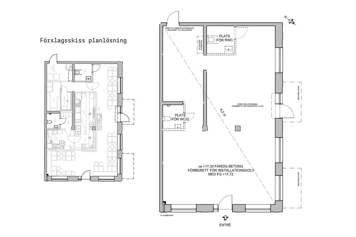
LOKAL 3 318kvm, Barkarbyvägen 89

En rymlig lokal på 318 kvm med stora fönster mot Barkarbyvägen. Lokalen är delad i två nivåer med entréer från Barkarbyvägen. För att lokalen ska vara flexibel vad gäller verksamhet hyrs den ut oinredd, dvs med råa ytor och utan installationer. Lokalen har förberedda avsättningar för WC, RWC och pentry. Miljörum, gemensamt för alla lokaler i kvarteret, är placerat i entré plan nära lokalen utmed Ålsta Allé. Inkast till sopsugsanläggning finns i kvarterets garageplan som ligger i direkt anslutning till lokalen.

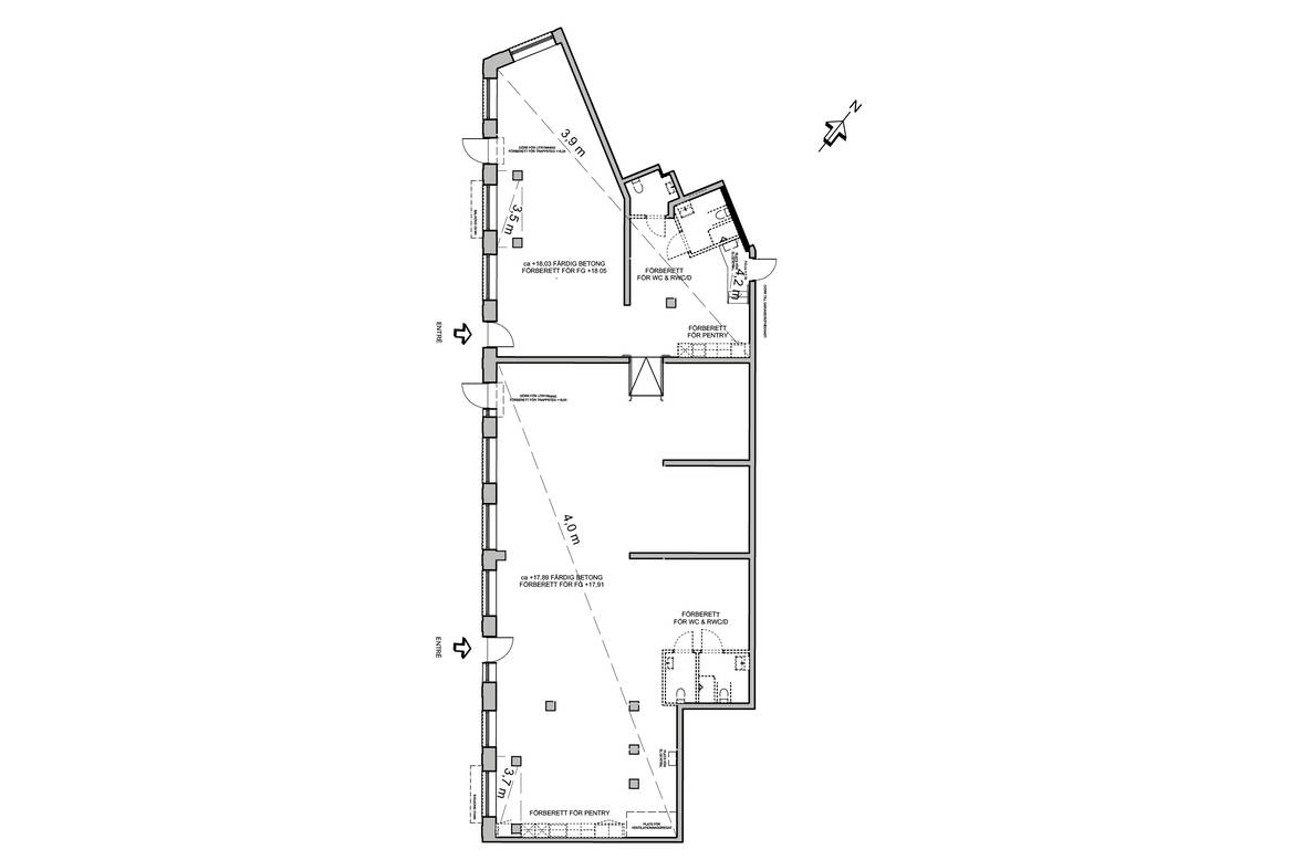
LOKAL 4 126kvm, Barkarbyvägen 

En lokal på 126 kvm som är förberedd för enklare restaurang, deli eller café. Lokalen har ett trevligt och centralt hörnläge som vetter åt Barkarbyvägen/Generalsgatan. Närliggande granne är kommunens nybyggda aktivitetspark. Möjlighet till uteservering finns både utmed Barkarbyvägen och Generalsgatan. Tillstånd för detta söks hos kommunen separat av köpare/operatör. En större del av lokalen är förberedd med installationsgolv vilket gör flexibla installationsdragningar för vatten, avlopp och el. Lokalen har en egen kombitank för fettavskiljare samt ett eget fläktrum.
Miljörum, gemensamt för alla lokaler i kvarteret, är placerat i entréplan i trapphus 2 utmed Ålsta Allé. Inkast till sopsugsanläggning finns i kvarterets garageplan som ligger i anslutning till lokalen.

 

 

Omgivning

Horisont Barkarby byggs med naturnära läge en bit från centrum i Barkarbystaden. Lokalen kommer att ligga ett par minuters promenad från en av blå linjens nya tunnelbanestationer, Barkarbystaden, som invigs år 2026.

I Barkarbystaden är det nära till det mesta i form av service, shopping, restauranger och skolor. Det är även nära till parker och flera naturreservat och grönområden.  

Här kommer bussar, pendeltåg, tunnelbana, regionaltåg och Förbifart Stockholm att skapa ett nytt nav för kommunikationer alldeles i anslutning till Stockholm. Här finns även närheten till både Bromma flygplats och Arlanda.

Här hittar du mer information om Sveriges modernaste stadsmiljö Välkommen till Barkarby - Barkarby

Kommunikationer

I Barkarby är närheten alltid nära

Barkarby blir en viktig knutpunkt för hela regionen när Stockholm växer. Inom några år kommer Barkarby att erbjuda en svårslagen tillgänglighet som gör det lätt att röra sig i regionen mellan hem och arbete och besöka släkt och vänner långt utanför den myllrande stadsmiljön.

I Barkarby pågår unika satsningar på infrastruktur; nya tunnelbanestationer, Förbifart Stockholm och en helt ny regional-och fjärrtåg station. Här kommer tunnelbana, bussar, pendeltåg, regionaltåg, fjärrtåg, E18 och Förbifart Stockholm skapa ett nav för kommunikationer som utvidgar och knyter samman Stockholmsregionen med Mälardalen. Här finns också närheten till Bromma flygplats, Arlanda och resten av världen.

2027 kommer du enkelt att kunna välja mellan tunnelbana, pendeltåg, buss, regionaltåg och fjärrtåg för att ta dig norrut, västerut eller till Stockholms innerstad. Men, redan nu är det enkelt att resa till Barkarby med buss, pendeltåg, bil eller varför inte med Sveriges första BRT-linje

Ansvarig Mäklare

Susanne Askvall
Susanne Askvall Lokalmäklare - Uthyrare susanne.askvall@bjurfors.se
070-976 91 06