Lokalen
Stockholm
Kontorslokal - Uthyres
Adress:
Ranhammarsvägen 4, bv
Hyra:
2 500 kr/kvm/år
Årshyra:
277 500 kr/år
Fastighetsskatt:
169 kr/kvm/år
Bruttoarea:
111 kvm

Nybyggd lokal i bottenvåningen

Modern nybyggd lokal i markplan. Lokalen kommer att färdigställas tillsammans med hyresgästen som har möjlighet att påverka både planlösning och vissa materialval. Idag har lokalen en öppen planlösning och på ritningen visas ett förslag på rumsindelning. Lokalen har ett flertal fönster vilket ger ett ljust intryck.

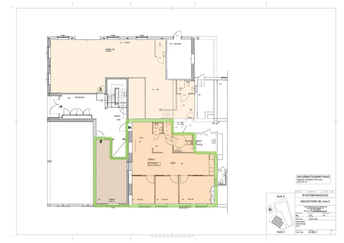
Planlösning

Lokalen ligger i markplan och har två entréer. En större hwc med dusch finns. Pentryts placering går att justera man vill. Det finns möjlighet att bygga 3-4 rum i ytan eller att behålla den öppna planlösningen.

Ort - Område

Gallerian Bromma Blocks med butiker och restauranger ligger ca 15 minuters promenad eller 3 minuters bussfärd från lokalen. Det finns även ett flertal restauranger i närområdet. Lokalen har också närhet till Bromma flygplats. På ca 8 minuters promenadavstånd ligger Lillsjön med fina grönområden.

Kommunikationer

Närhet till både E4 och E18. Tvärbanestationen Norra Ulvsunda inom gångavstånd. Bra buss-kommunikationer busslinjer 112, 155 och 156, som tar ca 5 minuter till T-bana Brommaplan.

Övrigt

I fastigheten finns flera kontor i olika storlekar att hyra, så om inte denna passar kontakta mäklaren.

Parkering

Parkeringar finns garageplats 2 000 kr/månad exkl. moms. Utomhusparkering 1 400 kr/månad exkl. moms.

Ansvarig Mäklare

Susanne Askvall
Susanne Askvall Lokalmäklare - Uthyrare susanne.askvall@bjurfors.se
070-976 91 06