Fastigheten
Sollentuna
Kontorslokal - Uthyres
Adress:
Skolvägen 16
Hyra:
1 800 kr/kvm/år
Fastighetsskatt:
112 kr/kvm/år
Bruttoarea:
170 kvm

Vindskontor/- showroom med öppen planlösning

Ljust och trevligt vindskontor med öppen planlösning och takfönster. Med egen entré på plan 2. Stort kök med matplats för ca 8-10 personer. Ett konferensrum med glasvägg finns. Wc med dusch och bastu. Till lokalen går att hyra till en garagebyggnad om 33 kvm för 2 515 kr/månad exkl. moms

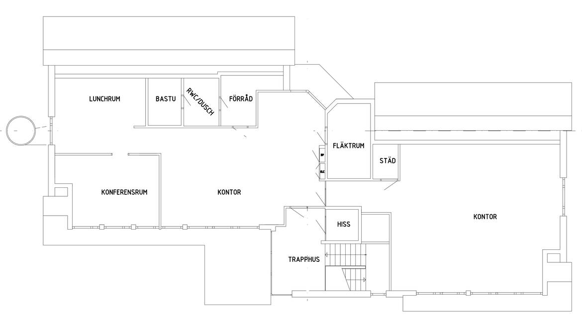
Planlösning

Gemensam entré i markplan, kontoret ligger på plan 2. Till plan 2 tar man sig antingen med hiss eller trappor. Med den enda entrén på plan 2 kan man skapa en välkomnande hall utanför hissen. Innanför entrén är det en öppen planlösning,  till höger ett större rum med takfönster som ger ett bra ljusinsläpp. Rakt fram är ett större fönster, till vänster om det ytterligare ett öppet större rum samt här ligger också wc med dusch och bastu. Längst till vänster ligger köket med stor matplats och angränsande med glaspartier finns ett konferensrum. 

Kommunikationer

Mycket bra kommunikationer. På gångavstånd ett par minuter bort ligger Norrvikens pendeltågsstation. Utanför kontoret går Norrviksleden restid med bil ca 20 minuter till Stockholms city.

Ansvarig Mäklare

Susanne Askvall
Susanne Askvall Lokalmäklare - Uthyrare susanne.askvall@bjurfors.se
070-976 91 06